

Категории
- Новинки Новинки
- Фурнитура для зеркал Фурнитура для зеркал
- Для витрин и мебели из стекла Для витрин и мебели из стекла
- Дистанционные держатели Дистанционные держатели
-
Для душевых из стекла
Для душевых из стекла
- Петли для душевых кабин(общий)
- Петли серии премиум
- Петли серии нержавеющая сталь
- Петли серии цинк
- Монопетли
- Ручки для душевых
- Коннекторы для душевых кабин
- Коннекторы для штанг верхней обвязки
- Раздвижные душевые системы серия 002
- Раздвижная серия 003
- Раздвижная серия 015
- Поворотно раздвижная серия YM-18H
- Раздвижная серия 8620
- Раздвижная серия АТЛАНТ
- Профиль п-образный AISI304
- Профили из алюминия
- Комплект штанга-петля
- Трубы (штанги верхней обвязки/треки) для душевых кабин
- Замки для душевых кабин
- Уплотнители для душевых
- Силиконы и герметики
- Пороги и соединители
- Аксессуары для ванной
- Регулируемые стабилизационные штанги
- Расходные материалы
- Пробковая прокладка
- Защитные покрытия HENDLEX
- Стекло 8мм
- Раздвижные системы Раздвижные системы
- Для маятниковых дверей Для маятниковых дверей
- Для межкомнатных дверей Для межкомнатных дверей
- Фурнитура для саун, бани и хамам Фурнитура для саун, бани и хамам
- Дверные доводчики Дверные доводчики
- Замки для стеклянных дверей Замки для стеклянных дверей
- Ручки для стеклянных дверей Ручки для стеклянных дверей
- Спайдеры и фурнитура для стеклянных козырьков Спайдеры и фурнитура для стеклянных козырьков
- Зажимные профили Зажимные профили
- Крепежные изделия Крепежные изделия
- Стеклодержатели для ограждений Стеклодержатели для ограждений
- Нержавеющие поручни с пазом Нержавеющие поручни с пазом
- Трубы из нержавеющей стали Трубы из нержавеющей стали
-
Фурнитура для ограждений (стекло- нержавейка)
Фурнитура для ограждений (стекло- нержавейка)
- Зажимной профиль для ограждений
- Готовые стойки для ограждений
- Держатель поручня-стекла
- Заглушки
- Держатели поручней
- Отводы и соединители
- Низы стоек, крепежи,основания
- Держатели ригеля
- Стойки для перил из акрила
- Поручни ПВХ
- Декоративные крышки для стоек
- Фланцы
- Тактильные индикаторы из нержавеющей стали
- Стеклопетли для стеклянных ограждений
- Фурнитура для плекси перил Фурнитура для плекси перил
- Инструмент и материалы для обработки стекла Инструмент и материалы для обработки стекла
- Стекло и зеркало Стекло и зеркало
- Типовые варианты стеклоконструкций под заказ Типовые варианты стеклоконструкций под заказ
- Изделия из нержавеющей стали Изделия из нержавеющей стали
- Мебельная фурнитура Мебельная фурнитура
- Мебельные колеса и колесные ролики для мебели Мебельные колеса и колесные ролики для мебели
- Уцененные товары Уцененные товары
- Товары по специальной цене -30% Товары по специальной цене -30%
Арт: 600-0051
В избранное
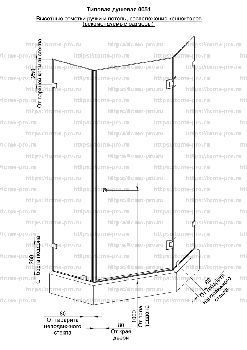
SN600-0051 Душевая кабинка трапеция вариант 1
Комплект душевой кабины из стекла производится под заказ, сроки уточняйте у менеджера компании. в расчет стоимости входит стандартный комплект фурнитуры. В проект душевой кабины можно поставить любую фурнитуру из каталога компании. При изменении комплектации изменится стоимость!!!
- Название, Вариант душевой перегородки - Цена Задать вопрос!
- Название, Вариант душевой перегородки - Цена Задать вопрос!
- Название, Вариант душевой перегородки - Цена Задать вопрос!
- Название, Вариант душевой перегородки - Цена Задать вопрос!
- Название, Вариант душевой перегородки - Цена Задать вопрос!
Обращаем Ваше внимание, что данный товар будет отгружен со склада
Данный товар продается упаковками!
Вы можете пробрести этот товар по специальной цене!
Характеристики
| Количество в блоке | 1 комплект |
| Вариант душевой перегородки | Трапециевидная |
Характеристики
| Количество в блоке | 1 комплект |
| Вариант душевой перегородки | Трапециевидная |
| Цвет стекла | Бесцветное |
| Материал фурнитуры | Цинковый сплав |
| Цвет фурнитуры | Хром |
| Доп Информация | ВНИМАНИЕ !!! В стоимость не входит монтаж и замер душевой кабины. Компания Синдикат не выезжает на замер и установку душевой кабины, МЫ ПРОДАЕМ ТОЛЬКО КОМПЛЕКТУЮЩИЕ!!!. Список подрядчиков по установке может быть предоставлен по запросу. |
Характеристики
| Количество в блоке | 1 комплект |
| Вариант душевой перегородки | Трапециевидная |
| Цвет стекла | Кристаллвижн |
| Материал фурнитуры | Цинковый сплав |
| Цвет фурнитуры | Хром |
| Доп Информация | ВНИМАНИЕ !!! В стоимость не входит монтаж и замер душевой кабины. Компания Синдикат не выезжает на замер и установку душевой кабины, МЫ ПРОДАЕМ ТОЛЬКО КОМПЛЕКТУЮЩИЕ!!!. Список подрядчиков по установке может быть предоставлен по запросу. |
Характеристики
| Количество в блоке | 1 комплект |
| Вариант душевой перегородки | Трапециевидная |
| Цвет стекла | Осветленное |
| Материал фурнитуры | Цинковый сплав |
| Цвет фурнитуры | Хром |
| Доп Информация | ВНИМАНИЕ !!! В стоимость не входит монтаж и замер душевой кабины. Компания Синдикат не выезжает на замер и установку душевой кабины, МЫ ПРОДАЕМ ТОЛЬКО КОМПЛЕКТУЮЩИЕ!!!. Список подрядчиков по установке может быть предоставлен по запросу. |
Характеристики
| Количество в блоке | 1 комплект |
| Вариант душевой перегородки | Трапециевидная |
| Цвет стекла | Бронза |
| Материал фурнитуры | Цинковый сплав |
| Цвет фурнитуры | Хром |
| Доп Информация | ВНИМАНИЕ !!! В стоимость не входит монтаж и замер душевой кабины. Компания Синдикат не выезжает на замер и установку душевой кабины, МЫ ПРОДАЕМ ТОЛЬКО КОМПЛЕКТУЮЩИЕ!!!. Список подрядчиков по установке может быть предоставлен по запросу. |
|
Чертеж |
|
Чертеж |
|
Чертеж |
|
Чертеж |
|
Чертеж |
Краткая информация
|
Наименование позиции |
Кол. | Цинковый сплав |
Нержавеющая сталь |
Латунь |
| Ручка двери | 1 шт. | РК121-12 | РК121-458 | РК121-412 |
|
Коннектор стекло- стена 90º |
4 шт. | К110-70 | КН031-304 | S801 |
|
Коннектор стекло- пол |
2 шт. | К110-70 | КН031-304 | S801 |
| Дверная петля стекло-стекло 135º | 2 шт. | П109-302 | П018-304 | S48-3 |
|
Уплотнитель стекло- стена |
2 шт. | 114-007-8 | 114-007-8 | 114-007-8 |
|
Уплотнитель стекло- пол |
1 шт. | 114-007-8 | 114-007-8 | 114-007-8 |
| Порожек двери | 1 шт. | П111-10 | П111-10 | П111-10 |
|
Уплотнитель дверь- порожек |
1 шт. | 111-009В1-8 | 111-009В1-8 | 111-009В1-8 |
|
Уплотнитель двери стекло-стекло со стороны петель |
1 шт. | ПУ111-05 | ПУ111-05 | ПУ111-05 |
|
Уплотнитель двери магнитный 135º |
1 шт. | ПМ111-008CW | ПМ111-008CW | ПМ111-008CW |
|
Штанга верхней обвязки |
1 шт. |
Т113- 111(нерж.,Ø19) |
Т113- 111(Ø19) |
Т113- 111(нерж.,Ø19) |
| Коннектор труба-стена | 2 шт. | КВО118-05 | КВО113-05 | КВО113-05 (нерж.) |
|
Коннектор труба- стекло |
2шт. | КВО118-06 | КВО113-06 | КВО113-06 (нерж.) |
|
Коннектор труба-труба (шарнир) |
2 шт. | КВО118-08 | КВО113-08 | КВО113-08 (нерж.) |





