

Категории
- Новинки Новинки
- Фурнитура для зеркал Фурнитура для зеркал
- Для витрин и мебели из стекла Для витрин и мебели из стекла
- Дистанционные держатели Дистанционные держатели
-
Для душевых из стекла
Для душевых из стекла
- Петли для душевых кабин(общий)
- Петли серии премиум
- Петли серии нержавеющая сталь
- Петли серии цинк
- Монопетли
- Ручки для душевых
- Коннекторы для душевых кабин
- Коннекторы для штанг верхней обвязки
- Раздвижные душевые системы серия 002
- Раздвижная серия 003
- Раздвижная серия 015
- Поворотно раздвижная серия YM-18H
- Раздвижная серия 8620
- Раздвижная серия АТЛАНТ
- Профиль п-образный AISI304
- Профили из алюминия
- Комплект штанга-петля
- Трубы (штанги верхней обвязки/треки) для душевых кабин
- Замки для душевых кабин
- Уплотнители для душевых
- Силиконы и герметики
- Пороги и соединители
- Аксессуары для ванной
- Регулируемые стабилизационные штанги
- Расходные материалы
- Пробковая прокладка
- Защитные покрытия HENDLEX
- Стекло 8мм
- Раздвижные системы Раздвижные системы
- Для маятниковых дверей Для маятниковых дверей
- Для межкомнатных дверей Для межкомнатных дверей
- Фурнитура для саун, бани и хамам Фурнитура для саун, бани и хамам
- Дверные доводчики Дверные доводчики
- Замки для стеклянных дверей Замки для стеклянных дверей
- Ручки для стеклянных дверей Ручки для стеклянных дверей
- Спайдеры и фурнитура для стеклянных козырьков Спайдеры и фурнитура для стеклянных козырьков
- Зажимные профили Зажимные профили
- Крепежные изделия Крепежные изделия
- Стеклодержатели для ограждений Стеклодержатели для ограждений
- Нержавеющие поручни с пазом Нержавеющие поручни с пазом
- Трубы из нержавеющей стали Трубы из нержавеющей стали
-
Фурнитура для ограждений (стекло- нержавейка)
Фурнитура для ограждений (стекло- нержавейка)
- Зажимной профиль для ограждений
- Готовые стойки для ограждений
- Держатель поручня-стекла
- Заглушки
- Держатели поручней
- Отводы и соединители
- Низы стоек, крепежи,основания
- Держатели ригеля
- Стойки для перил из акрила
- Поручни ПВХ
- Декоративные крышки для стоек
- Фланцы
- Тактильные индикаторы из нержавеющей стали
- Стеклопетли для стеклянных ограждений
- Фурнитура для плекси перил Фурнитура для плекси перил
- Инструмент и материалы для обработки стекла Инструмент и материалы для обработки стекла
- Стекло и зеркало Стекло и зеркало
- Типовые варианты стеклоконструкций под заказ Типовые варианты стеклоконструкций под заказ
- Изделия из нержавеющей стали Изделия из нержавеющей стали
- Мебельная фурнитура Мебельная фурнитура
- Мебельные колеса и колесные ролики для мебели Мебельные колеса и колесные ролики для мебели
- Уцененные товары Уцененные товары
- Товары по специальной цене -30% Товары по специальной цене -30%
Арт: 0152
В избранное
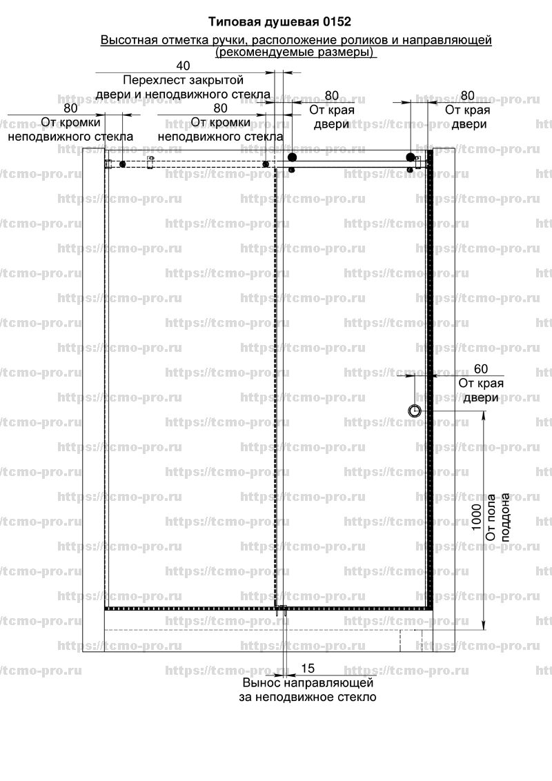
SN0152 Раздвижная душевая кабина
Комплект душевой кабины из стекла производится под заказ, сроки уточняйте у менеджера компании. в расчет стоимости входит стандартный комплект фурнитуры. В проект душевой кабины можно поставить любую фурнитуру из каталога компании. При изменении комплектации изменится стоимость!!!
- Название, Вариант душевой перегородки - Цена Задать вопрос!
- Название, Вариант душевой перегородки - Цена Задать вопрос!
- Название, Вариант душевой перегородки - Цена Задать вопрос!
- Название, Вариант душевой перегородки - Цена Задать вопрос!
- Название, Вариант душевой перегородки - Цена Задать вопрос!
Обращаем Ваше внимание, что данный товар будет отгружен со склада
Данный товар продается упаковками!
Вы можете пробрести этот товар по специальной цене!
Характеристики
| Количество в блоке | 1 комплект |
| Вариант душевой перегородки | Раздвижная система |
Характеристики
| Количество в блоке | 1 комплект |
| Вариант душевой перегородки | Раздвижная система |
| Цвет стекла | Бесцветное |
| Материал фурнитуры | Цинковый сплав |
| Цвет фурнитуры | Хром |
| Доп Информация | ВНИМАНИЕ !!! В стоимость не входит монтаж и замер душевой кабины. Компания Синдикат не выезжает на замер и установку душевой кабины, МЫ ПРОДАЕМ ТОЛЬКО КОМПЛЕКТУЮЩИЕ!!!. Список подрядчиков по установке может быть предоставлен по запросу. |
Характеристики
| Количество в блоке | 1 комплект |
| Вариант душевой перегородки | Раздвижная система |
| Цвет стекла | Кристаллвижн |
| Материал фурнитуры | Цинковый сплав |
| Цвет фурнитуры | Хром |
| Доп Информация | ВНИМАНИЕ !!! В стоимость не входит монтаж и замер душевой кабины. Компания Синдикат не выезжает на замер и установку душевой кабины, МЫ ПРОДАЕМ ТОЛЬКО КОМПЛЕКТУЮЩИЕ!!!. Список подрядчиков по установке может быть предоставлен по запросу. |
Характеристики
| Количество в блоке | 1 комплект |
| Вариант душевой перегородки | Раздвижная система |
| Цвет стекла | Осветленное |
| Материал фурнитуры | Цинковый сплав |
| Цвет фурнитуры | Хром |
| Доп Информация | ВНИМАНИЕ !!! В стоимость не входит монтаж и замер душевой кабины. Компания Синдикат не выезжает на замер и установку душевой кабины, МЫ ПРОДАЕМ ТОЛЬКО КОМПЛЕКТУЮЩИЕ!!!. Список подрядчиков по установке может быть предоставлен по запросу. |
Характеристики
| Количество в блоке | 1 комплект |
| Вариант душевой перегородки | Раздвижная система |
| Цвет стекла | Бронза |
| Материал фурнитуры | Цинковый сплав |
| Цвет фурнитуры | Хром |
| Доп Информация | ВНИМАНИЕ !!! В стоимость не входит монтаж и замер душевой кабины. Компания Синдикат не выезжает на замер и установку душевой кабины, МЫ ПРОДАЕМ ТОЛЬКО КОМПЛЕКТУЮЩИЕ!!!. Список подрядчиков по установке может быть предоставлен по запросу. |
|
Интерактивная схема |
|
Наименование позиции |
Кол. | Цинковый сплав |
Нержавеющая сталь |
| Комплект для раздвижной системы | 1 шт. | QL-1008 | Р-133-002 |
| Трек 10х30х1,5 | 1 шт. | Т113-19 (нерж.) | Т113-19 |
| Профиль нижний | 1 шт. | П2372 (Al) | П2372 (Al) |
| Крышка профиля нижнего | 1 шт. | П2373 (Al) | П2373 (Al) |
|
Уплотнитель двери стекло-стекло |
1 шт. | ПУ114-004У-8 | ПУ114-004У-8 |
| Профиль-упор | 1 шт. | П1591-2200 (Al) | П1591-2200 (Al) |
| П-образный профиль | 1 шт. | П2756-2200 (Al) | П2756-2200 (Al) |
|
Уплотнитель двери магнитный 90º/180º |
1 ком. | ПМ114-008А-8 | ПМ114-008А-8 |

